You are using an outdated browser. For a faster, safer browsing experience, upgrade for free today.

Վերանորոգված առանձնատուն Իջևանում գույքի հետ միասին

Վաճառք
×
  • Կոդ 04/011
  • ֏ 55,000,000
  • 3 Հարկ
  • շին․ - 292 քառ. մ․
  • հող․ - 787 քառ. մ․
Տավուշ > Իջևան

Զանգահարեն միայն ազնիվ, բարեխիղճ, քաղաքակիրթ և ադեկվատ մարդիկ, ովքեր պատրաստ են համագործակցել անշարժ գույքի գործակալության հետ:

Հարգելի՛ գնորդներ, աշխատանքի բնույթն այնպիսին է, որ գործակալությունը հեռախոսով կոնկրետ հասցե չի տրամադրում: Հուսով ենք՝ ըմբռնումով կմոտենաք:

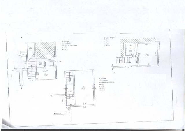
(Կոդ 04/011) Անշարժ գույքի գործակալություն է, հեռախոսով կոնկրետ հասցե չի տրամադրվում: Ունենք այլ տարբերակներ: Վաճառվում է երկհարկանի առանձնատուն Իջևան քաղաքում, մակերեսը 292,98 ք/մ է, իսկ հողամասի չափը՝ 787,6 ք/մ, ունի 44.27 ք/մ մակերեսով ավտոտնակ: Առանձնատնից բացվում է շատ գեղեցիկ տեսարան: Առաջին հարկ-3 նկուղ Երկրորդ հարկ- նախասենյակ, 3 ննջասենյակ, 1 մեծ հյուրասենյակ, 2 սանհանգույց, խոհանոց, բաց պատշգամբ: Երրորդ հարկ- 2 չվերանորոգված սենյակ Տունը գազաֆիկացված է, ունի 24 ժամյա տաք ու սառը ջուր, հոսանք, կոյուղի, պատուհանները եվրոպական արտադրության են, մուտքի դուռը՝ երկաթյա, տանիքը թիթեղյա է, ունի ջեռուցման համակարգ՝ baxi, հյուրասենյակի, սանհանգույցների և միջանցքների հատակը տաքացվող է: Հողամասում առկա է կիսակառույց ջերմոց, կա հավ և խոզ պահելու հնարավորություն, ունի 17,99 ք/մ մակերեսով անասնաշենք: Առանձնատունը բետոնյա կառույց է, կապիտալ վերանորոգված է, կահավորված և վաճառվում է գույքի և տեխնիկայի հետ միասին, գինը 55 000 000 ՀՀ դրամ: Նամակ մի գրեք, բոլոր քննարկումների համար զանգահարեք: Կրկնում ենք ևս մեկ անգամ, հեռախոսով հասցե չի տրամադրվում,տվյալ անշարժ գույքի սեփականատիրոջ մասին որևէ ինֆորմացիա չի տրամադրվում:
Շինության տեսակը: Քարե
Վերանորոգում: Կապիտալ վերանորոգված
Հատկանիշներ Ջուր, Էլեկտրականություն, Գազ, Կոյուղի, Ջեռուցման համակարգ, Բաց պատշգամբ, Նկուղ, Ավտոտնակ

Կապահովենք Ձեր կոմֆորտը

Բաժանորդագրվեք մեր թարմացումներին

jyg!